Newseat Farmhouse

Rhynie, Huntly, Aberdeenshire, AB54 4HH

Offers Over £380,000

Bedroom Count icon 6

Reception Count icon 2

Bathroom Count icon 5

  • 2 reception rooms. 6 bedrooms
  • 4 ensuites, bathroom & shower room
  • Immaculate condition
  • Beautiful garden grounds
  • Around 0.67 of an acre
  • Idyllic location with impressive views

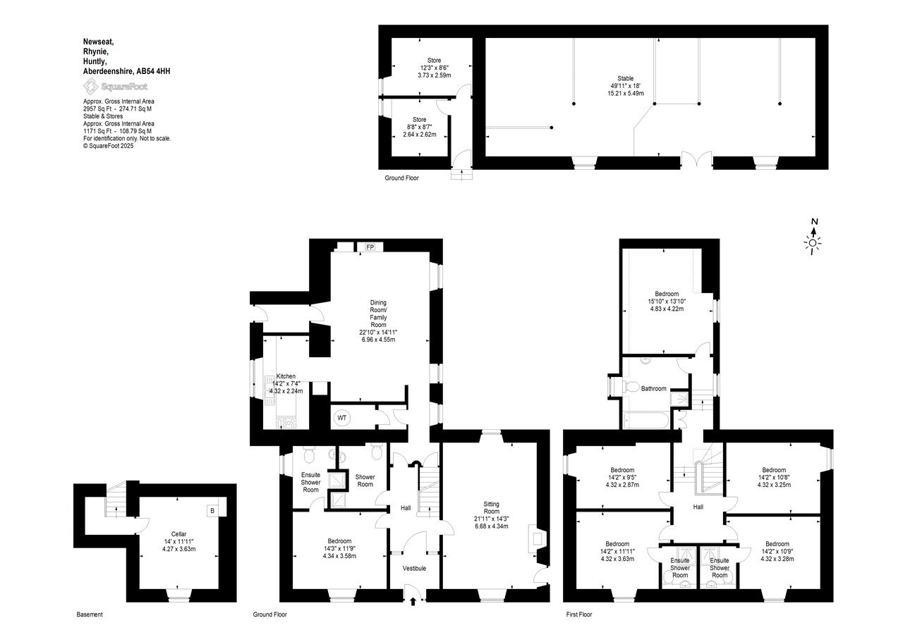
Newseat is an impressive and renovated traditional stone farmhouse located in the idyllic Scottish countryside in Rhynie, near Huntly in Aberdeenshire. With an elevated position and beautiful open views over the surrounding countryside, this is a superb property sitting in around 0.67 of an acre. Entering from the front vestibule, the main entrance hall is a wonderful entrance, with solid wood flooring and the original wood doors & finishings. To one side is the main sitting room with a dual aspect and a wood burning stove. To the other side is a generous double bedroom enjoying the views, and with ensuite shower room. There is an additional modern shower room accessed from the hall. Continuing through to the rear of the house, you will find the dining room / family room. This is a versatile room with a wood burning stove and is on semi open plan with the modern fitted kitchen. The kitchen is very well equipped, offers both storage and work top space and has a range cooker. There are various storage options on the ground floor and a rear vestibule leads outside. Stairs lead down to the lower ground floor cellar room which houses the boiler.Continue up the stairs from the main hall to the first-floor landing. To the front of the property are two equally spacious double bedroom with the most impressive views to the front. Both these bedrooms have ensuite shower room. There are two further double bedrooms with a side view and located to the rear is the main double bedroom with adjacent bathroom.ACCOMMODATIONGround Floor: Vestibule, entrance hall, sitting room, dining room/family room, kitchen, shower room & bedroom with ensuite shower room.First Floor: Two bedrooms with ensuite shower room. Three further double bedrooms. Bathroom.Lower Ground Floor: Cellar room.GARDEN GROUNDSThe garden grounds are beautifully tended by the present owner. To the front of the house is a planted area bound by a traditional stone wall & hedging with a path meandering through. To the east side is a grass lawn area and a raised patio area accessed from the sitting room. Behind the house there is a further grass lawn, and an additional sheltered patio area lies to the west side of the house.The stone chip driveway provides parking for several cars. Part of the traditional building to the rear is included in the sale. This is a large stable room & two store rooms.SERVICES, COUNCIL TAX AND ENERGY PERFORMANCE CERTIFICATE(S)Water PrivateElectricity MainsDrainage Septic TankTenure FreeholdHeating Oil CHCouncil Tax N/AEPC Band DThe property is fitted with solar panels.ACCESS/THIRD PARTY RIGHT OF ACCESSThe track/drive from the main road is a shared access due to a third party requiring very occasional access to the farm buildings behind Newseat Farmhouse. The main access route to the farm buildings by the third party is up the track/drive to the east side of the farmhouse.ADDITIONAL INFORMATION This property is currently registered and operated as a holiday let, rather than a full residential dwelling. As such, buyers should be aware that standard residential mortgage lending may be restricted or unavailable until a formal change of use is applied for and approved by the relevant local authority.SITUATIONRhynie is a quaint village some 9 miles south of Huntly in the county of Aberdeenshire. Located between Aberdeen to the east and Elgin to the west, Huntly is a historic town prospering during the 18th Century through the expanding linen industry. Today, amenities include primary and secondary schools, two major supermarkets, a good selection of independent shops, sporting and recreational facilities and a train station providing direct links to Aberdeen and Inverness. The small village of Rhynie has a local shop, church and primary school. Aberdeen (about 37 miles) provides all the facilities expected from a modern and prosperous city, with an excellent selection of shopping, retail parks and associated services, rail links and an airport (about 29 miles) providing regular domestic and international flights.Aberdeenshire is renowned as being one of the sunniest and driest counties in Scotland and it has a wide range of excellent places to stay, eat and shop. The county is famed for its breath-taking scenery, long sandy beaches and wildlife and offers wonderful leisure and recreational opportunities. Nearby, the rivers Bogie and Deveron offer superb fishing whilst the area also offers ample opportunities for a wide range of game sports and country pursuits. The Nordic Ski Centre in Huntly provides training for cross country skiing and The Lecht Ski Centre, Glenshee and Aviemore are within relatively easy reach. There are many golf courses accessible within a short drive and as a popular tourist area, local attractions include ‘The Whisky Trail’, ‘The Speyside Way’, Cairngorm National Park, together with many ancient monuments, castles, buildings, and villages of historical significance.